
Cabinet Merengone et Associés
11 bis Rue Gubernatis
11 Bis Rue Gubernatis
06000
Nice
France
Réf. 2257
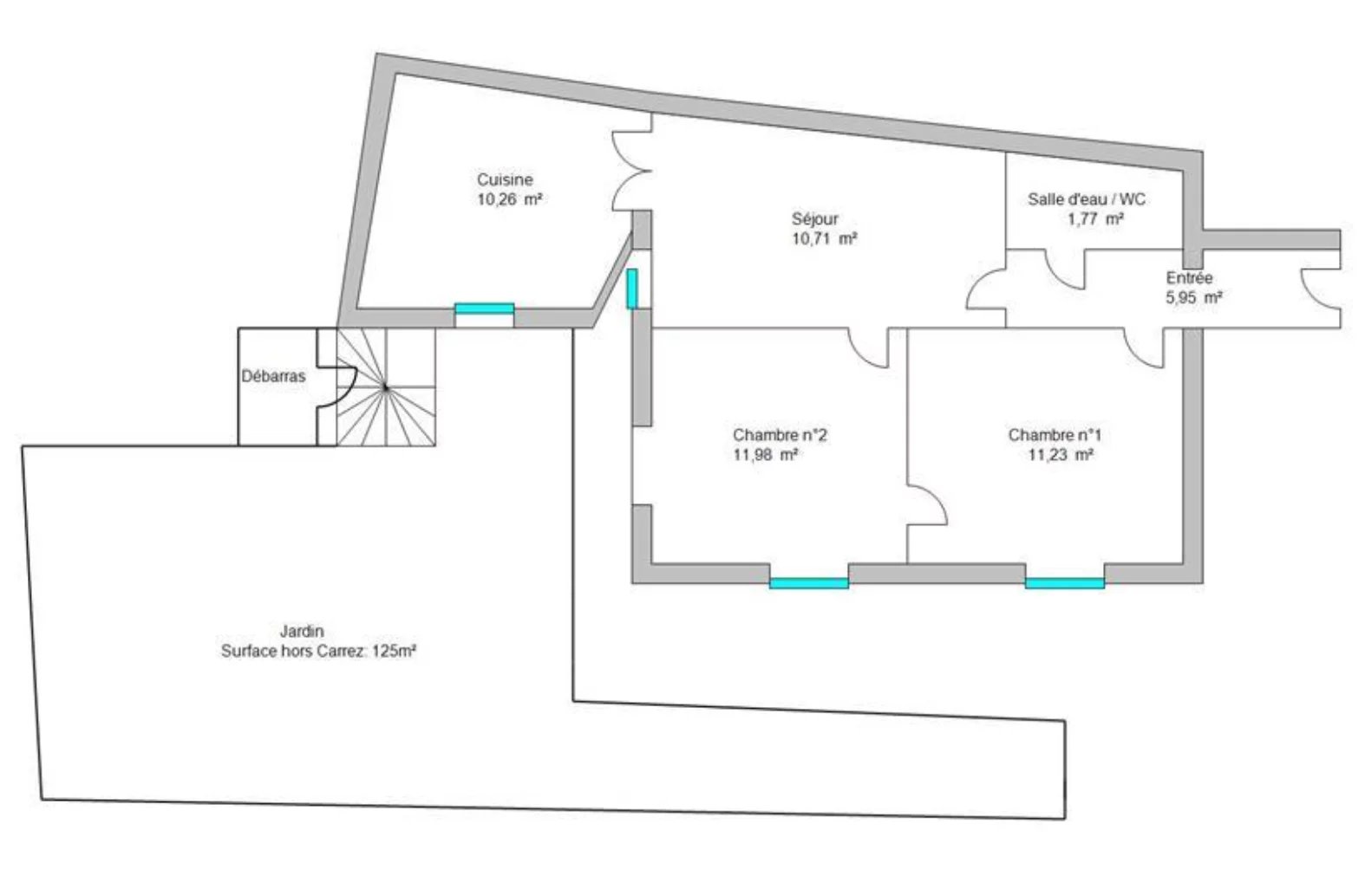
3 pièces
2 chambres
54 m²
379 000 €
A 7 minutes à pied de la promenade des Anglais, dans un petit immeuble Niçois, découvrez ce ravissant petit 3 pièces de 52 m² avec une terrasse jardin de 125 m² exposé plein sud.
le bien est entièrement refait avec beaucoup de goût, il est composé d'une entrée, 2 chambres, séjour avec cuisine US équipée, salle de douche wc, terrasse et jardin sur 2 niveaux.
Climatisation réversible dans toutes les pièces
cuisine d'été
Abri de jardin non assujetti au permis de construire (8,9m²)
Pas d'informations disponibles

11 bis Rue Gubernatis
11 Bis Rue Gubernatis
06000
Nice
France
Ce site est protégé par reCAPTCHA et les règles de confidentialité et les conditions d'utilisation de Google s'appliquent.